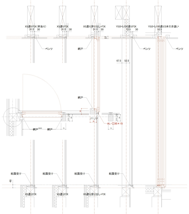
窓のディテール
窓のディテールは美しく、機能性も満たすことを心がけています。
日照や日差し、風をうまくコントロールし、快適に生活できるよう、様々な工夫をしています。
美しさだけでも、機能だけでも、気持ちの良い空間とならないので
美しさと性能の間で、いつも頭を悩ませながらデザインしています。

窓のディテールは美しく、機能性も満たすことを心がけています。
日照や日差し、風をうまくコントロールし、快適に生活できるよう、様々な工夫をしています。
美しさだけでも、機能だけでも、気持ちの良い空間とならないので
美しさと性能の間で、いつも頭を悩ませながらデザインしています。
